| Opiekun oferty | |
| Oskar Buchholz | |
| Telefon: | +48 791 149 782 |
| E-Mail: | oskar@lionsexpert.pl |
| Print date | 22.05.2026 |
| Kategorie des Angebots: | Verkauf |
| anzahl der Zimmer: | 2 |
| Souterrain: | 4 |
| fläche: | 44 |
| Gebäudetyp: | Altbau |
| Preis: | 437 000 zł |
I recommend for sale two-bedroom flat located in Poznan, Łazarz district (Marcelego Mottego street). This location allows quick get to the city centre of Poznan by tramway. Within walking distance main train station, many convenience shops.
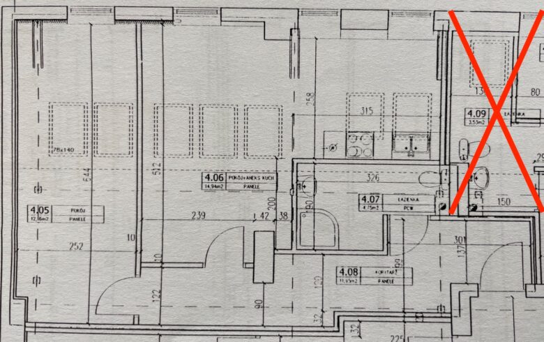
Area is 43,8 sqm. There are bedroom, living room with kitchen area, hall and bathroom.
Utilities: gas, electricity, water.
Poznan City is located western part of Poland and it’s capital of Greater Poland, it has got great location, three-hour drive to Berlin and three-hour drive to Warsaw.
Poznan is a charming place to live and work with a delightful market square and cobblestone alley. Additionally, there are many green spots like parks and the river bank. Around Poznan are many forests, lakes and picturesque views.
Feel free to contact me.
The license number of the professionally responsible agent 21763. Intermediary has compulsory third party liability insurance for brokering activities. The above description is for information purposes and does not constitute an offer within the meaning of the Polish Civil Code.
Siehe Website |
![]() |
![]() |
![]() |
![]() |
![]() |
![]() |
![]() |
![]() |
![]() |
![]() |
![]() |
![]() |
![]() |
![]() |
![]() |
![]() |
![]() |
![]() |
![]() |
![]() |
![]() |